Pages

19.7.10

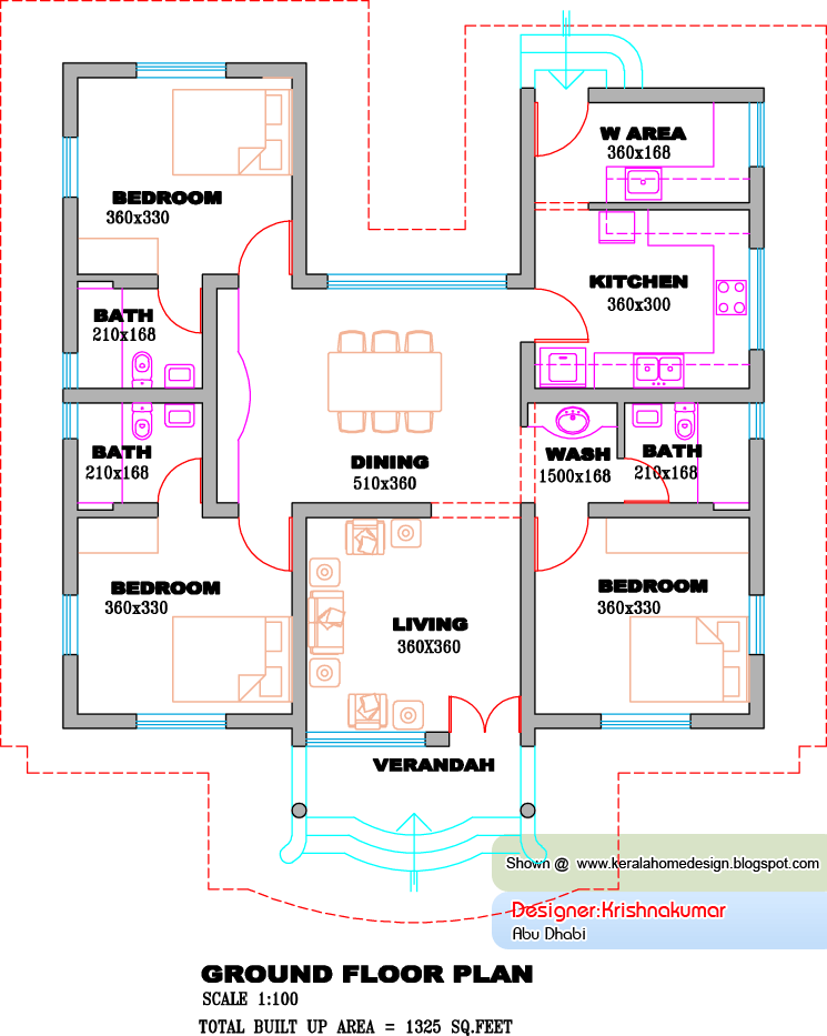
Kerala villa plan and elevation - 1325 Sq. Feet

Click On Each Pic to enlarge

single floor house plan kerala - Elevation

single floor house plan kerala - Ground Floor